世界喧嚣,静谧难得。随着城市化进程的不断推进,人们对浮华喧闹的城市生活热情渐退,反而向往起在森林鸟语中偏安一隅的惬意生活。将目光放到北京楼市,是否有这样一处住宅,既能享受城市的核心经贸资源,又能体悟自然的湖光水色呢?
或许,孙河傲云云墅就是一个不错的选择。

成熟配套,构筑全维生活版图
提到孙河项目,就不得不聊聊孙河板块内及周边区域完善的配套设施。
交通优势首当其冲。区域内多条交通动脉贯通,形成“两横四纵一轨道”的立体交通路网,是北京唯一一个拥有5条快速路的区域,“一轨”15号线孙河站,“两横”顺黄路和京平高速,“五纵”京承高速、京密路、京密快速路、机场高速和机场二高速,对内与城市核心商务区畅行通达,对外与国际高端商业区无缝链接。

区域内教育资源也是首屈一指。虽然孙河板块规划至今还不足十年,但自1994年京西学校成立后,北京知名国际学校纷纷落地孙河周边,现项目附近已拥有16所国际学校,占北京总量的70%,汇聚了北京80%以上的国际学生,真正做到教育与国际接轨,12年制教育一步到位。医疗方面,以傲云为起点,30分钟车程以内便有地坛医院、首都国际机场医院、中国中医科学院望京医院、中日友好医院四家三甲医院,国际知名的综合性全科医院和睦家、代表国际医疗标准的台湾明德、专业的妇儿医院美中宜和等享誉国际的医疗资源也汇聚于此,免除医疗后顾之忧。

娱乐方面,作为北京最早最成熟的别墅区,孙河周边形成了大量高端商务休闲配套,包括16大高尔夫球场、6大国际级马术俱乐部、8大艺术区、5大艺术馆、8大商圈中心满足购物、娱乐、社交多方需求,区域内若干高品质会所、私人博物馆、美术馆,为优雅生活平添繁华底色。

基于成熟项目配套,傲云云墅业主可以轻易开启交通、教育、医疗、娱乐皆优的全维生活版图,纵观整个北京所有新晋住宅供地,几乎没有任何项目能与之比肩。
低密墅居,打造健康人居典范
配套固然重要,但近年来反复爆发的疫情牵动着全国人民的心弦,令人们的生活观念产生了一些变化。
据《2021国民健康洞察报告》数据显示,93%的人认为[身体健康]是人生中最重要的事,[拥有财富]、[满意的工作]反而呼声不似想象的那样高,受访者中74%的人认为,这次突如其来的疫情改变了自己的生命观。
相应的,“准业主”的购房要求也从传统的看重区位、配套等外部硬性条件渐渐向环境、低密、服务等项目“软实力”倾斜,尤其是在北京这样“举目皆高楼”的一线城市,人们看惯了车水马龙、人潮拥挤,傲云项目的稀缺健康属性,在京圈若干住宅项目中就显得尤为突出。
傲云云墅作为政府先规划后开发的住宅项目,是城六区仅有的一片成规模的别墅区,区域内11宗住宅用地全域低密,土地的容积率全部保持在1.1-1.5之间,周边森林覆盖率高达70%。

项目内部也严格遵守低密标准,楼间间距得当,公共区域充足,由奥雅设计董事长,景观设计大师李宝章老师亲自操刀设计项目园林景观,保障空间开阔的前提下进一步分区,形成“两门 ,四园、十巷”的新中式景致,审美与实用性兼具,为健康品质人居绘上点睛之笔。

自然资源方面,傲云项目周边亦坐拥“一湖三园”,外有温榆河湿地公园、沙子营湿地公园、愉悦湾公园共同构成北京最大的城市生态绿肺,内有温榆河引水建成的10万平米中央湖景公园,森林、湿地、河流、湖泊内呼外应,将傲云云墅合围在臻稀的天然氧吧中,形成负氧离子和空气质量均优于市区的自然秘境,是不可多得的养生之所。疫情期间,大家只能在自己家或者周边小范围活动,孙河板块密度低绿化率高的优势尽显。在整个片区绿荫浓浓的环境里,偶尔可见业主跑步或骑行,惬意自在。

合理户型,空间感功能性并存
谈完外部因素,或许我们应该回归住宅本身,相信很多人置业的出发点都是希望给自己一个“家”,那“家”的概念是什么呢?正如《住宅读本》中描绘的那样,家不只是一个居住场所,更多的应该是心灵安稳之地。因此,家庭的分区布局、空间规划显得尤为重要。而傲云项目主打三款大户型产品,对屋内空间精心雕琢,立足多年豪宅建设经验,从舒适度和功能性出发,打造实用性、空间感兼具的臻稀住宅。
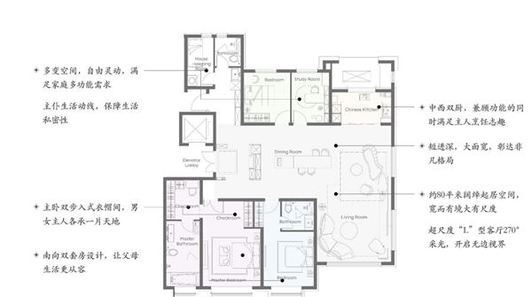
240-250m观湖平墅6层低密,悦享高品质生活。会客厅采取超空间“L”型设计实现270°采光;中西双厨,让居者自如享受烹饪乐趣;主卧双步入式衣帽间,男女主人各成一片天地;双套房设计,让父母生活更从容。

300-400m光影叠墅,超大单层面积,延申生活宽度。顶部整层主人空间,户型方正,私密性强,可以尽情发挥对家的想象力;主卧套房设计,包含家庭会客厅,增加家人沟通场景,超大南向采光彰显尊贵品质生活;餐客厅空间设计灵动,阳光美食尽情享受;上叠更享受专属电梯从负一层直达三层,方便快捷。

430-450m独墅合院,项目的楼王产品,单排单列,独揽广阔视野。先入院再入户,让归家充满仪式感;高效空间分割,每个房间都可以享受私家庭院景观;5.4米超大面宽全东向老人房,保障居住私密性的同时兼具会客便捷性;50平米超大主卧套房,双向采光观景,拥有独立衣帽间,尽享尊贵。

可以说,傲云的问世不仅代表孙河别墅区的收官,更是在后疫情时代,凭借区域优势和项目优势,高品质满足了客群的居住生活新需求,刷新了当下审美思潮的国际化城市人居封面。臻席资产,驭领竞藏,有置业需求的朋友需要抓紧行动了。
版权声明:
本网仅为发布的内容提供存储空间,不对发表、转载的内容提供任何形式的保证。凡本网注明“来源:XXX网络”的作品,均转载自其它媒体,著作权归作者所有,商业转载请联系作者获得授权,非商业转载请注明出处。
我们尊重并感谢每一位作者,均已注明文章来源和作者。如因作品内容、版权或其它问题,请及时与我们联系,联系邮箱:service@qeerd.com,投稿邮箱:tougao@qeerd.com
声明:本站所有新闻及新闻图片来源于其他网站,如有侵权,请及时联系我们!
网站备案号:京ICP备10046945号-17
版权所有:北京企迪信息技术有限公司
Copyright 2017 环球资讯网 All Rights Reserved.QQ:3529009033